






Mellom furutrærne
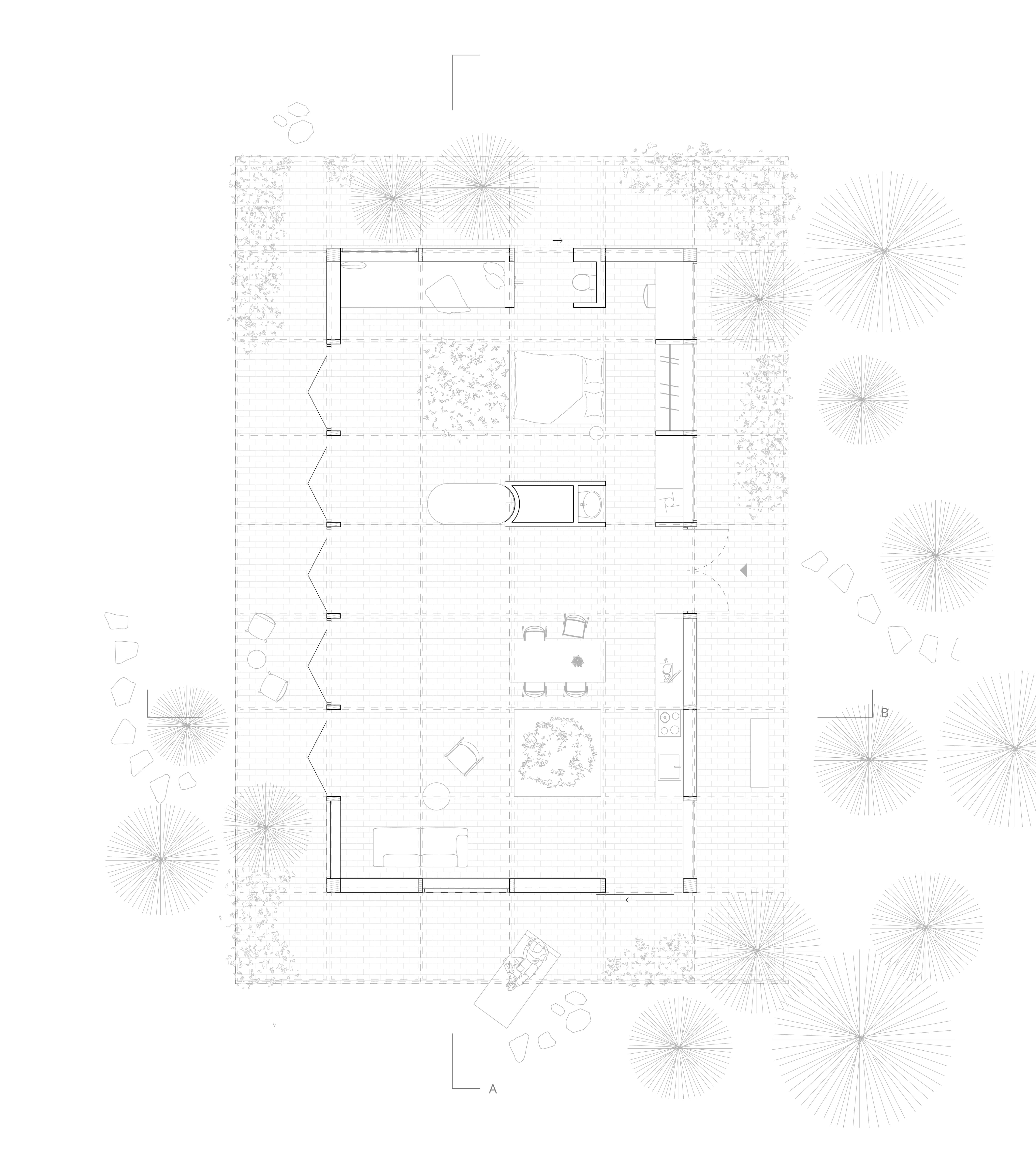
Prosjektet tar utgangspunkt i et beitemarkslandskap med spredte furutrær, der huset er tenkt som en del av terrenget og ikke et avgrenset objekt. Arkitekturen er plassert mellom trærne og utformet med mål om å gjøre landskapet til en integrert del av boligen. Dette forholdet mellom bygning og sted ligger til grunn for prosjektnavnet Mellom furutrærne.
En sentral ambisjon har vært å skape en sterk forbindelse mellom ute og inne. Gjennom en sømløs overgang mellom interiør og eksteriør, likt gulvnivå og sammenhengende materialbruk viskes grensene mellom inne og ute ut. Furutrærne er integrert i takkonstruksjonen, der stammene får vokse mellom takbjelkene og blir en del av romopplevelsen. Samtidig skaper varme materialer i interiøret en bevisst kontrast til det åpne landskapet rundt.
Bygningen er organisert etter et strengt 2 × 2 meters rutenett som strukturerer både plan, konstruksjon og romopplevelse. En lett trekonstruksjon med søyler langs ytterveggene står i kontrast til et tyngre teglgulv. Planløsningen er lagt opp med funksjoner langs ytterkantene og åpne, fleksible rom i midten, slik at ett rom kan romme flere situasjoner. En sentralt plassert peis og et frittstående badekar bidrar til å definere og binde sammen de ulike romlige sonene.
Når fasaden mot vest åpnes, kan luft, lyder og lukter fra landskapet strømme gjennom bygningen. Arkitekturen legger dermed til rette for en romopplevelse der naturen ikke bare betraktes, men er en aktiv del av boligen. Der arkitekturen både rammer inn og forsterker møtet med naturen. Slik skaper arkitekturen en opplevelse av å være ute, inne.