

Masteroppgave
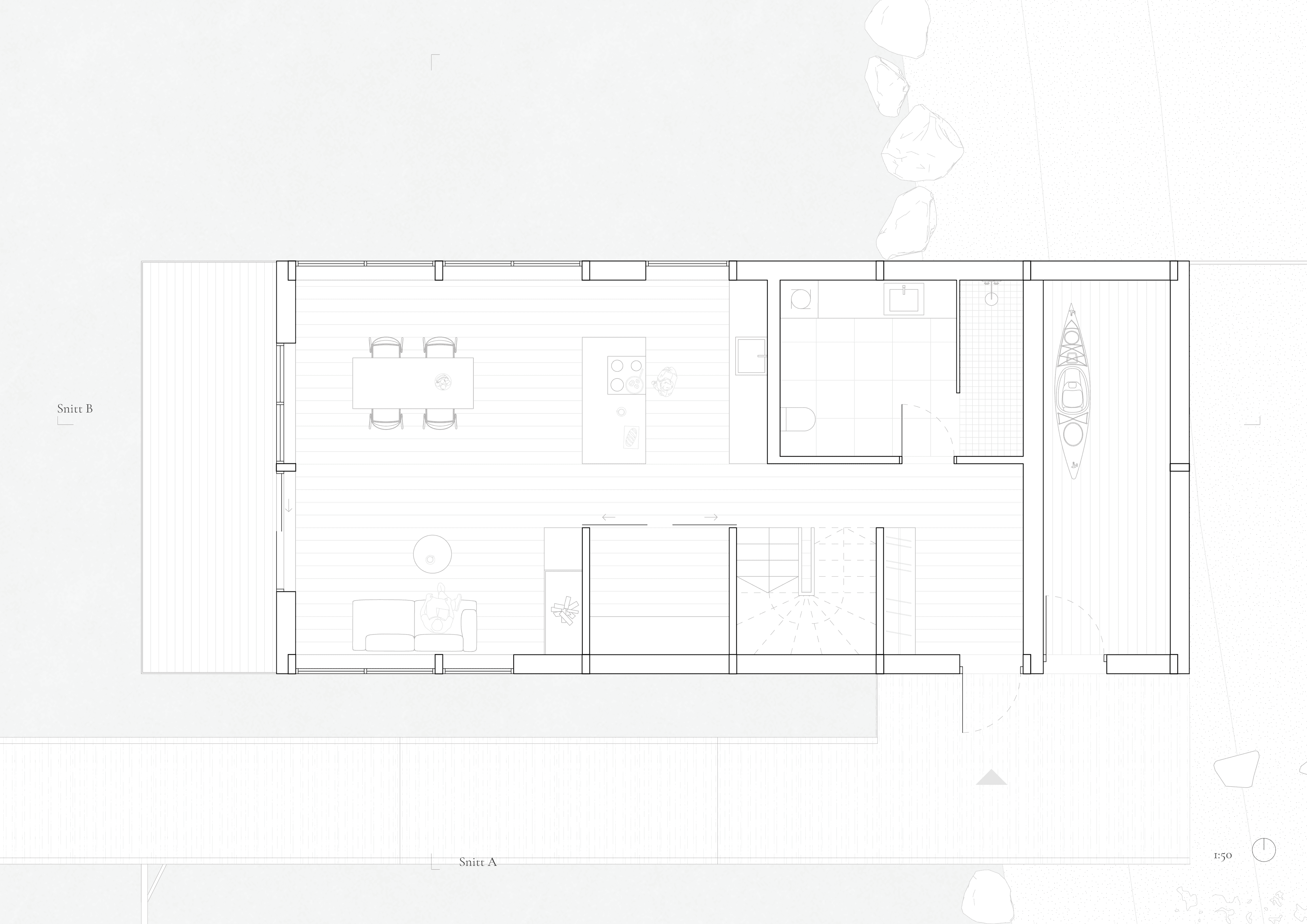
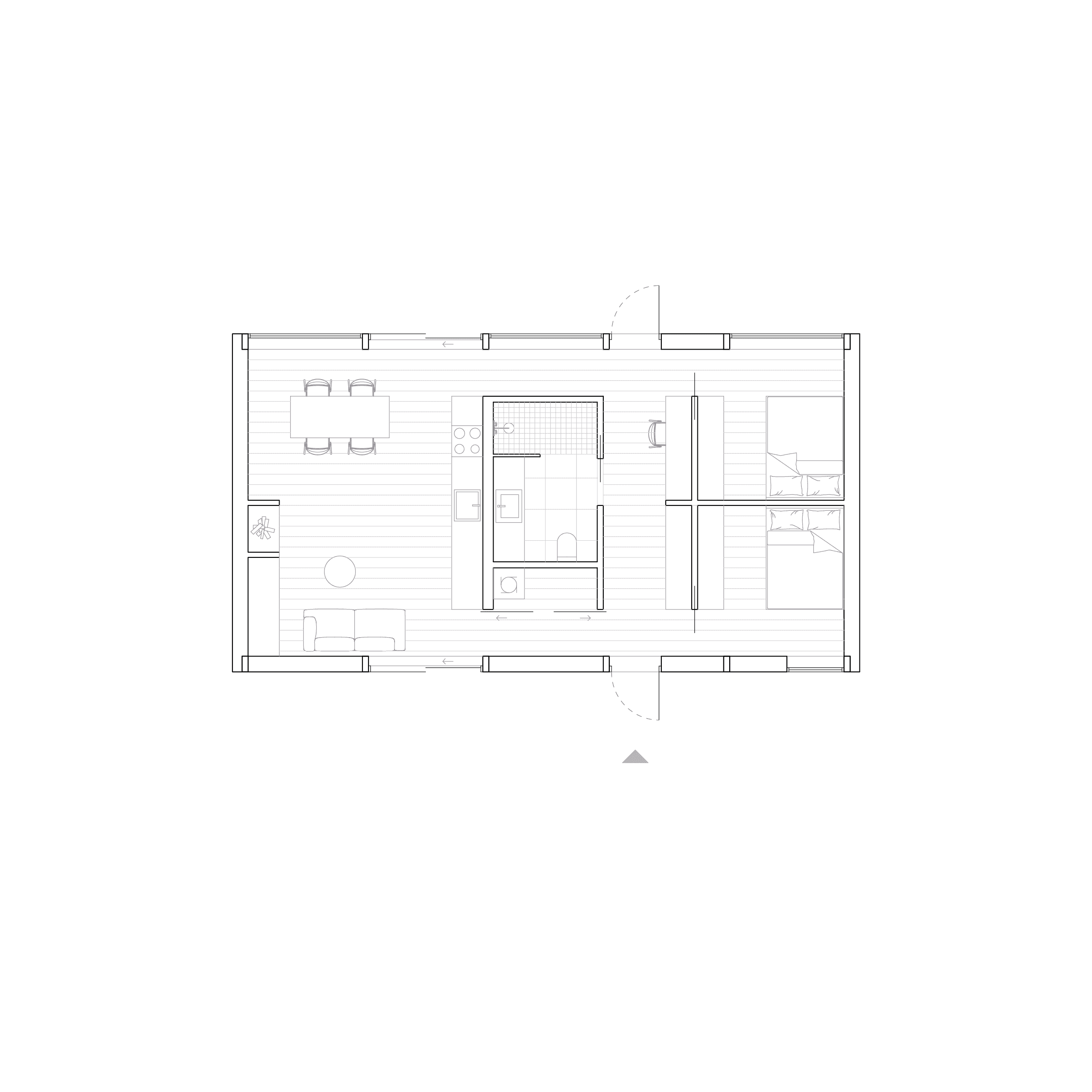
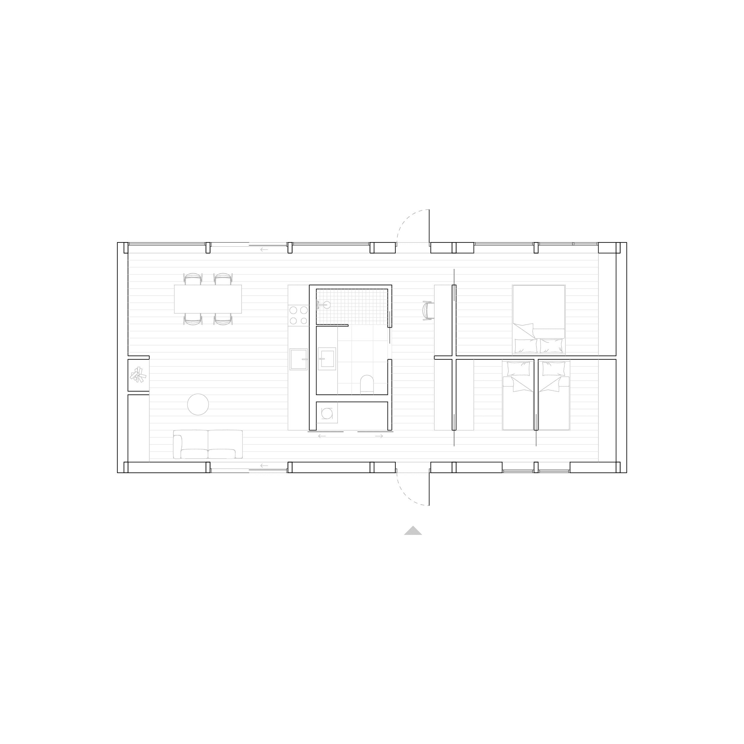
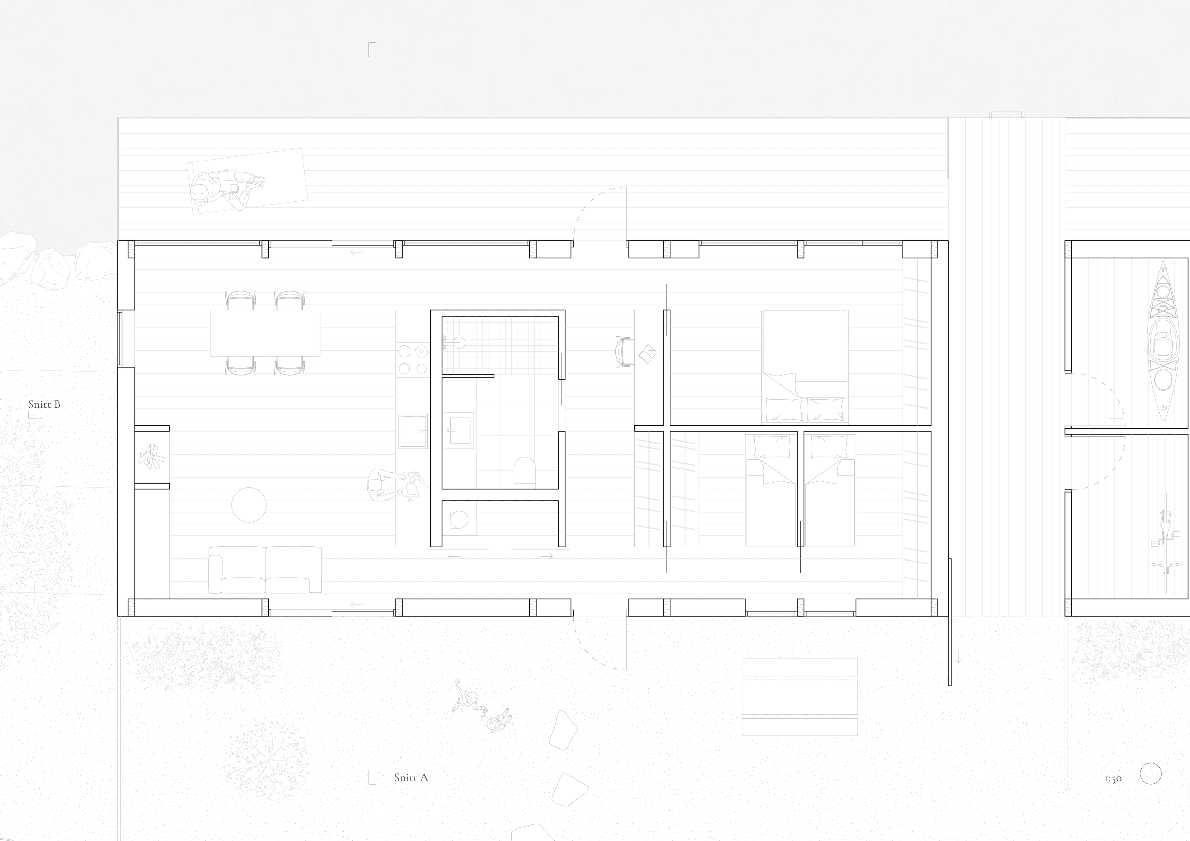
Oppgaven undersøker hvordan arkitektur kan bidra til strategisk stedsutvikling i Lurøy kommune, som er en liten kystkommune på Helgelandskysten. Kommunen har, som mange andre distrikter, opplevd fraflytting og en stadig aldrende befolkning, noe som truer både tjenestetilbud og lokal identitet. Samtidig krever klimaendringer og press på sårbare naturområder nye løsninger for bygg og infrastruktur. Som første ledd i en helhetlig utviklingsstrategi for øyene Onøy-Lurøy, tar prosjektet utgangspunkt i dagens havneområde på Onøy, et av kommunens viktigste ankomstpunkt, og undersøker hvordan dette kan transformeres fra et industriområde til et attraktivt knutepunkt for bosetting, næring og sosialt liv. Gjennom fleksible boløsninger, varierte møteplasser og lokalt tilpassede material- og konstruksjonsprinsipper søker prosjektet å styrke stedsidentiteten, ivareta landskap og naturverdier, samt legge til rette for en økt bolyst og et aktivt lokalsamfunn som skal være rustet for fremtidens klimautfordringer.





























